BIENVENIDOs
El Aromo
Comuna: La Florida | Estado del Proyecto: Venta en Blanco | Entrega Estimada: 2do Semestre del 2027
¿Cómo es vivir en La Florida?
Vivir en La Florida es disfrutar de una comuna conectada, segura y en constante crecimiento. Los Lilenes ofrece departamentos modernos de 1 y 2 dormitorios, con diseño funcional y ubicación estratégica a minutos del Metro, cerca de centros comerciales, colegios y servicios de salud.
Con alta proyección inmobiliaria y plusvalía, este proyecto es perfecto para quienes buscan invertir en propiedades en Santiago o vivir en un entorno cómodo y bien conectado.

Cercano al Mall Plaza Vespucio

A pasos del Metro Bellavista de La Florida y Metro Vicuña Mackenna

A minutos de Integramédica y RedSalud La Florida

Muy cerca del Estadio Monumental
¡No pierdas la oportunidad de invertir en el futuro de La Florida!
Terminaciones
- Piso vinílico en el interior del Depto.
- Ventanas termopanel con marco de PVC blanco.
- Cocina equipada con encimera vitrocerámica, campana y horno eléctrico.
- Muebles de cocina con cubierta de cuarzo / porcelanato.
- Baño con piso de porcelanato, equipado con tina, vanitorio con mueble de melamina y espejo de cristal sobrepuesto.
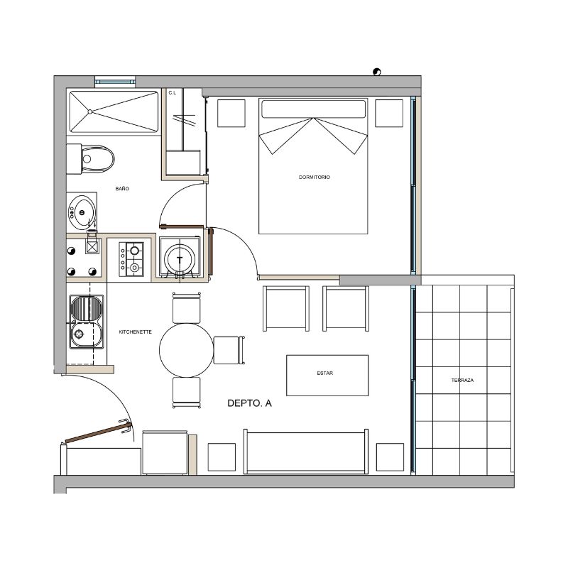
Tipologías
Condición Comercial
2do Semestre 2027
Venta en Blanco
$100.000
11%
21 Cuotas sin interés
4%
Edificio El Aromo
¡Una inversión inteligente donde la vida urbana y la tranquilidad se encuentran!
Las Imágenes aquí representadas son de carácter referencial, por lo que podrían no representar el resultado final del proyecto. (Art. 18 Ley No 19.472)


