BIENVENIDOS
Florida Town
Comuna: La Florida | Estado del Proyecto: Entrega Futura | Entrega Estimada: 2do Semestre del 2027
¿Cómo es vivir en La Florida?
Vivir en La Florida es disfrutar de una vida práctica, conectada y en constante desarrollo. Esta experiencia se potencia gracias a su ubicación estratégica, a pasos del Metro Mirador y Mall Florida Center. Esta comuna combina la tranquilidad residencial con una gran oferta de servicios, comercio y conectividad. Además, los espacios están pensados para adaptarse a las nuevas necesidades, con departamentos funcionales, terminaciones modernas y una distribución inteligente. La Florida es ideal para quienes buscan calidad de vida sin alejarse del dinamismo urbano.

A pasos del Metro Vicente Valdés, Metro Vicuña Mackenna, Metro Bellavista de La Florida

Cercano a Mall Plaza Vespucio

Cercano a Av. Américo Vespucio y Av. Vicuña Mackenna

A Minutos de La Universidad de Las Américas sede La Florida
¡Conectividad, calidad de vida y plusvalía asegurada!
Terminaciones
Piso fotolaminado en living, comedor y dormitorios.
Grifería y loza de baño de alta calidad
Puerta principal enchapada en madera
Ventanas termopanel con marcos de PVC
Piso de porcelanato en cocina y baño.
Cocina equipada con horno, encimera y campana, cubierta de granito en muebles de cocina.
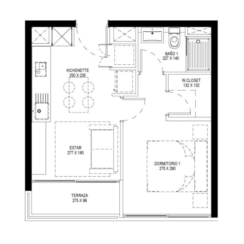
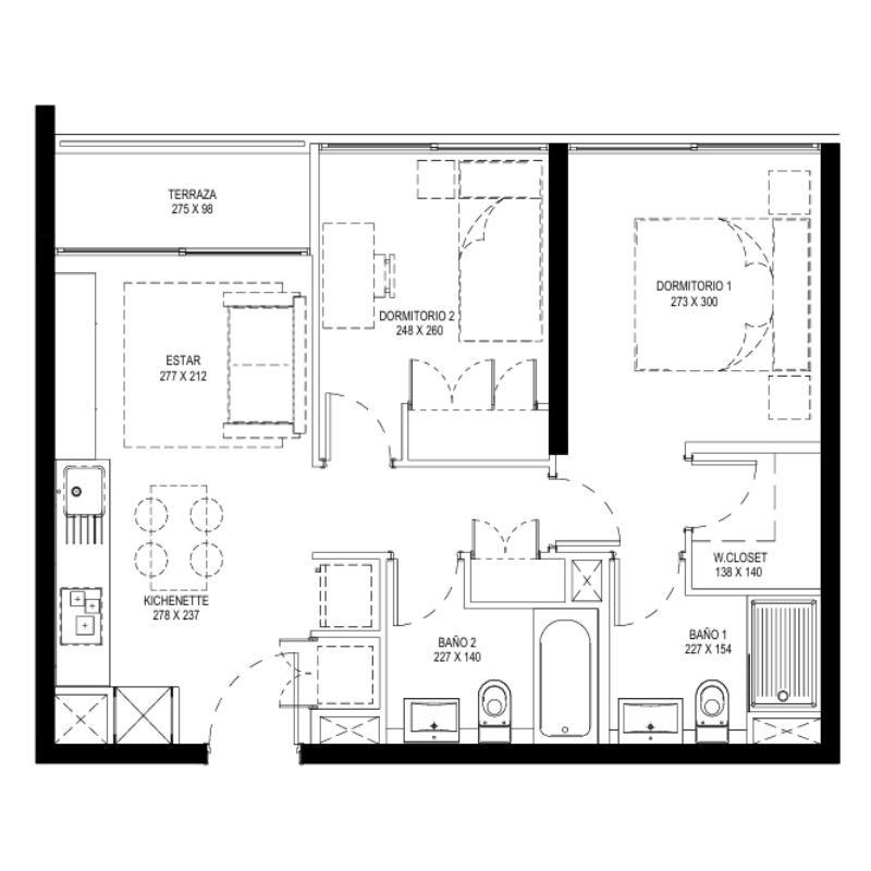
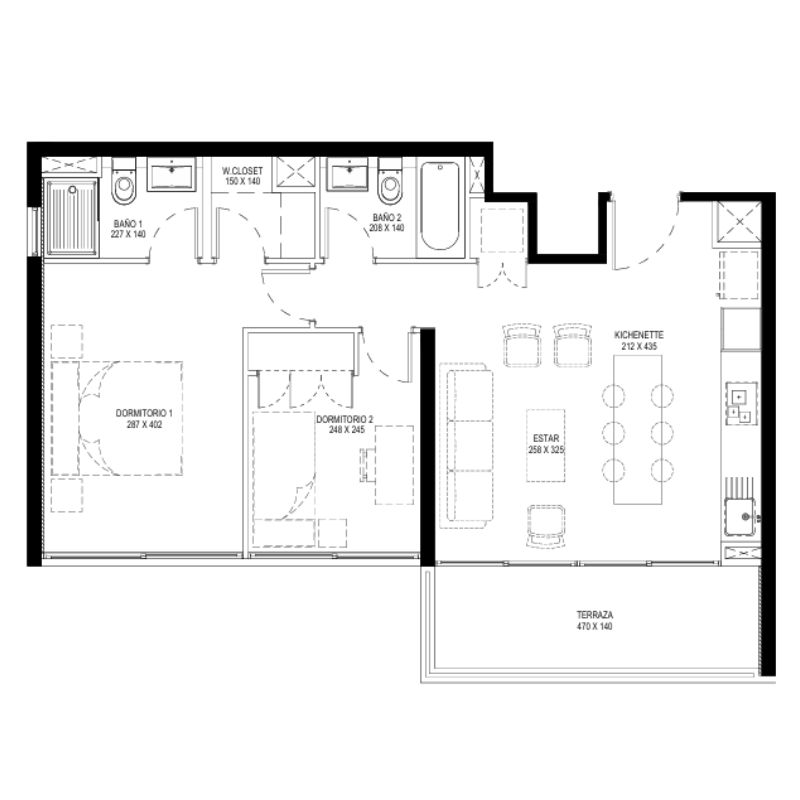
Tipologías




1D - 1B
2D - 2B
Condición Comercial
2do Semestre del 2027
Entrega Futura
$100.000
Hasta 5%
15 cuotas
10%
Tu próxima oportunidad está aquí: calidad de vida y gran rentabilidad
Edificio Florida Town
Las Imágenes aquí representadas son de carácter referencial, por lo que podrían no representar el resultado final del proyecto. (Art. 18 Ley No 19.472)



